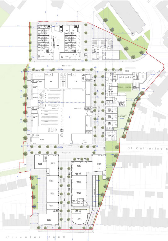
Site Plan
Home
Site Plan
Location
Planning Permission
Planning Documents
3D Images
Model Images
Contact Details
Enquiry
Players Square, Dublin, Ireland - Site Plan
Download a copy of the site plan